춘천 신북읍 부동산 경매, 5회 유찰 1.5억
Last Updated :

한줄 요약
5번 유찰된 춘천 신북읍 부동산, 가격 매력적이지만 리스크 고려 필요.물건 들여다보기
경매 상세 정보 바로가기 https://modoo.io/auction/2751
경매물건 주소 보기 강원특별자치도 춘천시 신북읍 용산리 15-3
강원특별자치도 춘천시 신북읍 용산리에 위치한 1451.3㎡ 부지입니다. 부동산의 면적은 약 439평으로 상당히 넓으며, 춘천 시내와 가까운 편입니다. 주변은 전원주택과 소규모 농지가 혼재된 지역으로 자연환경이 좋습니다. 교통은 다소 불편한 편이라 자차 이용이 필수입니다.가격이 말해주는 것
감정가는 4억 4,543만원이지만, 현재 최저입찰가는 1억 5,278만원으로, 감정가의 약 34% 수준입니다. 인근 시세와 비교해보면 상당히 저렴합니다. 예상 낙찰가는 1억 6,042만원 전후로 보고 있습니다. 솔직히 말하면, 가격만 보면 매력적입니다.권리분석, 여기가 핵심
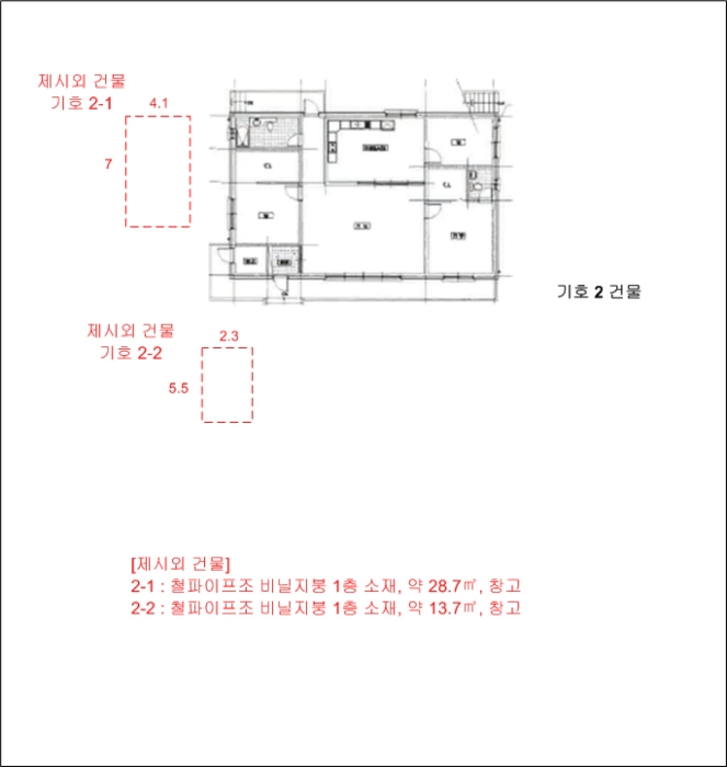
말소기준권리는 2019년 4월 12일 설정된 근저당권입니다. 중요한 점은 제시외 건물과 임야 부분이 도로로 사용 중이라는 점인데, 이는 실사용에 제약이 있을 수 있습니다. 임차인도 무상 거주 중인 상황이라 명도 과정이 복잡할 수 있습니다. 권리 분석은 꼼꼼히 해야 합니다.투자 관점에서 보면
춘천은 수도권 접근성이 점차 개선되고 있는 지역입니다. 하지만 솔직히 말하면, 5번의 유찰은 뭔가 문제가 있다는 신호일 수 있습니다. 예상 수익률은 인근 개발 호재에 따라 달라질 수 있지만, 현재로선 불확실성이 큽니다.내가 입찰한다면
경쟁률은 낮을 것으로 예상되지만, 그만큼 리스크도 큽니다. 권장 입찰가는 1억 5천만원 부근으로 설정하고, 취등록세는 약 737만원 정도로 예상됩니다. 명도 리스크와 추가 비용을 충분히 고려해야 합니다. 솔직히 말해, 신중히 접근할 필요가 있습니다.
춘천 신북읍 부동산 경매, 5회 유찰 1.5억 | 대한민국 무료 법원경매 정보 : https://koauction.com/873
부동산, 자동차 법원 경매전문